
Poszukujesz ustawnego mieszkania z trzema pokojami lub inwestycji pod wynajem? Zapraszam!
Chciałbym zaprezentować Państwu 3-pokojowe mieszkanie do remontu o bardzo ciekawym układzie pomieszczeń, zlokalizowane przy ul. Narewskiej 2 na osiedlu Antoniuk. Pod samym blokiem mamy tereny zielone z wysokimi drzewami oraz plac zabaw. Bloki znajdujące się obok oddzielone są od siebie szerokim pasem zieleni. Wokół budynku jest dużo miejsc parkingowych.
Niezwykle interesująca lokalizacja, dzięki zacisznemu sąsiedztwu oraz rozbudowanej infrastrukturze sklepów i usług. Dosłownie kilka minut pieszo od bloku znajdziemy sklepy spożywcze, piekarnie/cukiernie, apteki oraz Centrum Handlowe Antoniuk. Dodatkowo w odległości kilku minut przystanki autobusowe ok. 15-tu linii.
Rynek Kościuszki tylko 7 min autem - doskonały dojazd! PKP/PKS także kilka minut autem lub spacerem.
Nieruchomość usytuowana jest na 2 piętrze, 4-piętrowego budynku.
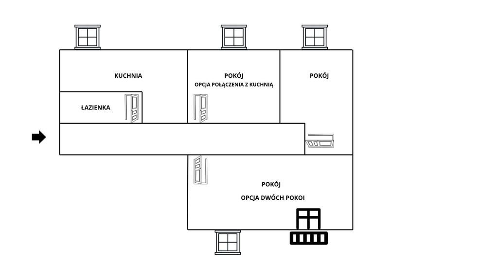
Mieszkanie ma powierzchnię 55,10 m2, na które składają się:
- salon,
- przestronny przedpokój,
- oddzielna kuchnia,
- salon z balkonem,
- sypialnia 1,
- sypialnia 2,
- łazienka,
Do mieszkania przynależy piwnica.
Stan nieruchomości:
Do remontu.
Informacje dodatkowe:
Mieszkanie ma ustanowioną odrębną własność z KW, zarządzane jest przez spółdzielnię mieszkaniową. Czynsz obecnie wynosi 700 zł.
Można posiłkować się kredytem hipotecznym. Pomagamy we wszystkich formalnościach!
Serdecznie zapraszam na prezentację!
W celu uzyskania większej ilości informacji proszę o kontakt telefoniczny 7 dni
w tygodniu, w godzinach 9:00-20:00.
Jako profesjonalne biuro nieruchomości pobieramy wynagrodzenie prowizyjne za wykonanie usługi pośrednictwa.
Mateusz Mańczuk
Doradca ds. Nieruchomości
Properton
Tel. 603 241 210